Ctra. N-340, Km.1113, Ametlla de Mar, 43860

INFORMACIÓN:
REF: 0525045052
DESCRIPCIÓN:
En la actualidad las casas de madera han sido una de las metas de muchos, dan la oportunidad de volver a la naturaleza a través de las cualidades de este estupendo material, su color, textura y aroma resultan siempre encantadores, tal y como en nuestra casa de madera Max, una casa de dos plantas simplemente estupenda.
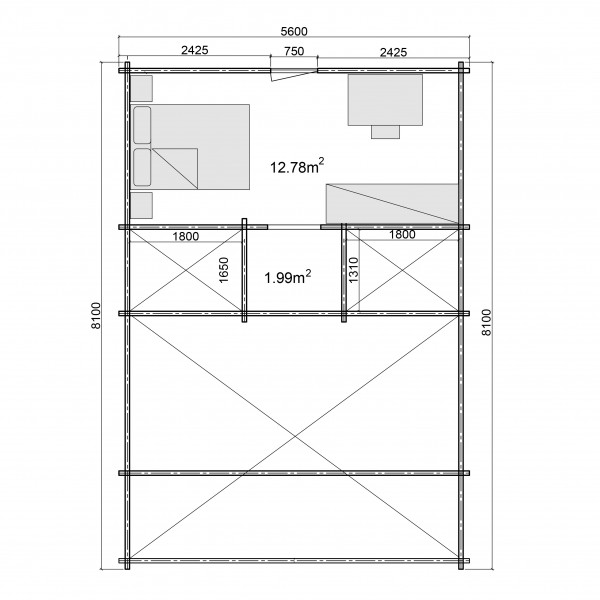
Esta casa está fabricada con madera de abeto, sus paredes tienen un grosor de 44 mm y se divide en 4 estancias, dos habitaciones así como un salón y un desván que resulta maravilloso, todo de la mano de la resistencia de la madera, Max es una casa de dos pisos perfecta para ti.
Esta casa no incluye: Cubierta para tejado, Soportes PVC, Techo Doble, Montaje del producto ni Tratamiento de madera. Si quiere estos complementos rellena nuestro formulario de contacto para que podamos contactar con usted y darle un presupuesto.
CARACTERÍSTICAS:
2 Plantas
Capacidad 4 Personas
Envío a Domicilio
Luminoso
Material Madera
Porche
Portátil
Puertas Abatibles
Sin Baño
Sin Cocina
Suelo de Madera
Techo a 2 Aguas
Ventanas doble Cristal
GALERÍA:
UBICACIÓN:
Abrir en Google MapsDIRECCIÓN:
Ctra. N-340, Km.1113, Ametlla de Mar, 43860
VÍDEO:
Anuncios similares
Nuevo
Nuevo
Nuevo

EUROCASETAS













