
INFORMACIÓN:
REF: 0525056626
DESCRIPCIÓN:
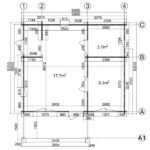
Las casas de madera se adaptan a la perfección a las necesidades de la actualidad, tener una residencia de este tipo brinda una espectacular experiencia y nuestra casa de madera Hakan se presenta como una de las mejores opciones. Un diseño agradable comienza por atraer a cualquiera y una vez en su interior resulta difícil querer marcharse.
Las vacaciones, fines de semana o días de verano son mejores en nuestra casa de madera Hakan, la cual tiene una pequeña terraza que resulta acogedora, un interior confortable y también cristal doble con cámara de aire, además de la resistencia y durabilidad que aporta la madera, todos querrán ser tus invitados en ella.
Esta casa no incluye: Cubierta para tejado, Soportes PVC, Techo Doble, Montaje del producto ni Tratamiento de madera. Si quiere estos complementos rellena nuestro formulario de contacto para que podamos contactar con usted y darle un presupuesto.
CARACTERÍSTICAS:
Envío a Domicilio
Luminoso
Material Madera
Porche
Portátil
Puertas Abatibles
Sin Baño
Sin Cocina
Suelo de Madera
Techo a 2 Aguas
GALERÍA:
UBICACIÓN:
Abrir en Google MapsDIRECCIÓN:
Ctra. N-340, Km.1113, Ametlla de Mar, 43860
VÍDEO:
Anuncios similares
Nuevo
DESTACADA
Nuevo
Polígono Industrial Ali Gobeo C/ Vitoriabidea, 15 – 01010 Vitoria
3
1
70
Nuevo
Polígono Industrial Ali Gobeo C/ Vitoriabidea, 15 – 01010 Vitoria
1
0
22
Nuevo

EUROCASETAS









