Casa de Madera Modelo Cuartón
Hijuela del Tio Gilito, 11500 El Puerto de Sta María, Cádiz

INFORMACIÓN:
REF:
DESCRIPCIÓN:
El modelo Cuartón es una de las casas rústicas prefabricadas más destacadas, ideal para quienes buscan un hogar acogedor y funcional en un espacio de 80 m².
Con un diseño que combina modernidad y tradición, esta vivienda se adapta perfectamente a las necesidades de familias pequeñas o medianas, brindando un ambiente cálido y agradable.
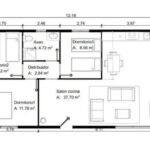
Diseño y distribución
Una de las características más sobresalientes del modelo Cuartón es su inteligente distribución de espacios. Con tres dormitorios, un baño, y un salón comedor con cocina integrada, esta casa está pensada para ofrecer comodidad y versatilidad.
Los tres dormitorios son luminosos y amplios, proporcionando el espacio necesario para el descanso y la privacidad. Cada habitación puede ser personalizada según las preferencias de los propietarios, lo que permite crear ambientes únicos y acogedores.
El corazón del Cuartón es su salón comedor, un espacio amplio y luminoso que se convierte en el lugar perfecto para la convivencia familiar.
La integración de la cocina en este ambiente fomenta la interacción social, permitiendo que las actividades de cocinar y compartir comidas se realicen en un mismo espacio.
Este diseño abierto es ideal para aquellos que disfrutan de la compañía y desean crear un hogar cálido y acogedor.
Versatilidad y Personalización
La posibilidad de personalización es uno de los aspectos más atractivos del modelo Cuartón.
Los propietarios pueden elegir desde los colores de las paredes hasta los acabados de los interiores, lo que les permite adaptar la casa a su estilo personal.
Esto hace que cada modelo Cuartón sea único y refleje la personalidad de quienes lo habitan.
El modelo Cuartón es una opción excelente para quienes buscan una casa rústica prefabricada que combine confort, estilo y funcionalidad.
Con sus 80 m² bien distribuidos, ofrece un hogar acogedor y adaptable a las diversas necesidades de sus habitantes.
Sin duda, el Cuartón es una elección ideal para quienes desean disfrutar de la tranquilidad del campo sin renunciar a las comodidades modernas.
CARACTERÍSTICAS:
Baño Completo
Capacidad 6 Personas
Envío a Domicilio
Luminoso
Material Madera
Persianas
Portátil
Puertas Abatibles
Techo a 1 Agua
Ventanas de PVC
GALERÍA:
UBICACIÓN:
Abrir en Google MapsDIRECCIÓN:
Hijuela del Tio Gilito, 11500 El Puerto de Sta María, Cádiz
VÍDEO:
Anuncios similares
Nuevo
Polígono Industrial Ali Gobeo C/ Vitoriabidea, 15 – 01010 Vitoria
1
0
17
Nuevo
Nuevo
Polígono Industrial Ali Gobeo C/ Vitoriabidea, 15 – 01010 Vitoria
1
0
22
Nuevo
DESTACADA

5SCC CASAS DE MADERA















