
INFORMACIÓN:
REF: 0825272742
DESCRIPCIÓN:
Descubre la nueva forma de vivir con la V6 Triangle House, una vivienda prefabricada con un diseño innovador en forma de triángulo, ideal para quienes buscan estilo, confort y eficiencia en un espacio reducido.
📐 Dimensiones y superficie
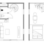
Planta baja: 20,3 m² (L 5550 x An 4050 x Al 2550 mm)
Planta alta: 12,5 m² (L 5550 x An 2590 x Al 2550 mm)
Superficie construida total: 32,8 m²
Capacidad: Perfecta para 2 personas.
Distribución
1 dormitorio acogedor en planta alta
1 sala de estar luminosa con grandes ventanales
1 baño moderno y funcional
Consumo total de energía: 10 kW – máxima eficiencia en un espacio optimizado.
Ideal como casa de campo, vivienda vacacional o alojamiento turístico, la V6 Triangle House combina diseño futurista con practicidad, integrándose en plena naturaleza con estilo y confort.
El tiempo estimado de fabricación y entrega a España es de 3 a 4 meses, el precio venta no incluye el transporte a España ni gastos aduaneros.
CARACTERÍSTICAS:
2 Plantas
Aire Acondicionado
Baño Completo
Buhardilla
Calefacción
Capacidad 6 Personas
Cocina Amueblada
Cocina Eléctrica
Desmontable
Diáfano
Envío a Domicilio
Instalación de Agua
Instalación Desagües
Instalación Eléctrica
Luminoso
Material Acero
Portátil
Puertas Abatibles
Puertas Correderas
Sin Cocina
Suelo de vinilo
Techo a 2 Aguas
Ventanas de PVC
Ventanas doble Cristal
GALERÍA:
UBICACIÓN:
Abrir en Google MapsDIRECCIÓN:
Madrid, Las Rozas
VÍDEO:
Anuncios similares

ODGII PREFABRICADOS BULDING
















