DESTACADA
Polígono Industrial Ali Gobeo C/ Vitoriabidea, 15 - 01010 Vitoria

INFORMACIÓN:
REF: 0525053423
DESCRIPCIÓN:
Casas prefabricadas de madera Mérida con altillo de abeto nórdico a 2 alturas
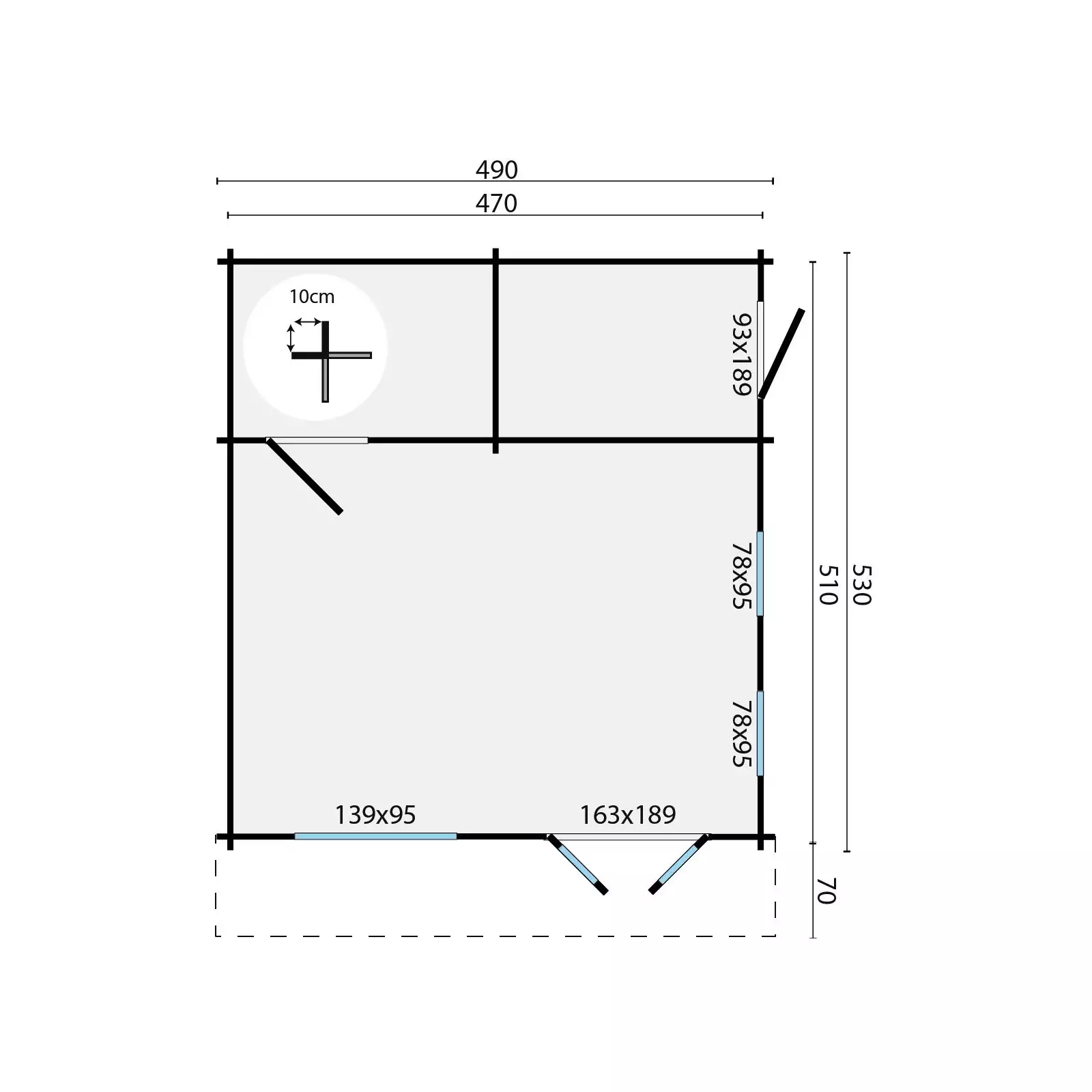
Casas prefabricadas de madera con estancias y altillo, de medidas 490×530 cms.
Distribución: La casa de madera con estancias casa tiene 3 estancias en la planta baja y el altillo.
Es ideal para casa de campo o de invitados.
Las puertas simples que están ubicadas en las dos estancias interiores, se pueden colocar tanto dentro como fuera, simplemente se debe hacer el hueco de donde se quieran colocar. La posición en la que aparecen en el plano es un ejemplo.
La madera de estas casas de madera son abeto nórdico con tratamiento por inmersión contra xilófagos (termitas, etc).
La altura máxima es de 344 cms y la mínima de 230 cms.
El diseño es muy especial, con tejado a 2 aguas, con un alero frontal de 70 cms adicionales.
Grosor de madera y ensamblaje: Está fabricada con lamas de madera machihembradas de 44 mm de grosor, lo que hace sea una casa muy robusta y bien aislada, que pueda soportar colgar estanterías en paredes. Las lamas van unidas entre sí mediante el sistema entrecruzado para conseguir una gran resistencia estructural.
Las medidas interiores son de 470×510 cm y las exteriores de 490×530 cm.
Tiene una puerta doble, de abertura exterior, con ventanas fijas de doble acristalamiento (4-6-4) las medidas del hueco para la puerta son de 163×189 cm.
Tiene otras 2 puertas, para acceso a las estancias , estas puertas se incluyen en el kit pero los huecos en las paredes no están hechas para que el cliente decida poner el acceso desde el interior o desde el exterior.
Las puertas exteriores de esta casa de madera van provistas de una cerradura.
Además tiene 2 ventanas batientes para dar mayor claridad de medidas 78×95 cms y otra ventana de medidas 139×95 cms, provistas de doble acristalamiento de 4-6-4.
Se incluye suelo de madera de planta baja y altillo, escalera para acceso a altillo, listones bajo pavimento tratados para un perfecto aislamiento del suelo y también todo el kit de tornillería e instrucciones para el montaje.
Incluye suelo de madera de planta baja y altillo, escalera para acceso a altillo, listones bajo pavimento tratados, kit de tornillería e instrucciones para el montaje.
DESCARGA NO INCLUIDA
CARACTERÍSTICAS:
2 Plantas
Capacidad 4 Personas
Material Madera
Portátil
Puertas Abatibles
Techo a 2 Aguas
Ventanas doble Cristal
GALERÍA:
UBICACIÓN:
Abrir en Google MapsDIRECCIÓN:
Polígono Industrial Ali Gobeo C/ Vitoriabidea, 15 - 01010 Vitoria
VÍDEO:
Anuncios similares
Nuevo
DESTACADA
Nuevo

HOBYCASA





















