
INFORMACIÓN:
REF: 0425164381
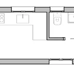
DESCRIPCIÓN:
Una vivienda compacta con estilo único que combina diseño funcional y elegancia. Ideal para quienes buscan un espacio versátil, ya sea como vivienda principal o auxiliar, este modelo ofrece comodidad y una estética moderna que se adapta a cualquier entorno.
Compuesto por 1 contenedor de 12 metros, ofrece 30 m² de espacio. Diseñado para incluir una habitación, un baño y una cocina abierta. Este modelo optimiza el uso del espacio, garantizando luminosidad, amplitud y confort en un entorno práctico y moderno.
CARACTERÍSTICAS:
Baño Completo
Cocina Equipada
Luminoso
Suelo de vinilo
Techo a 2 Aguas
Ventanas doble Cristal
GALERÍA:
UBICACIÓN:
Abrir en Google MapsDIRECCIÓN:
Valencia, España
VÍDEO:
Anuncios similares

DOS DÍAS CONTAINER







