GOMERA (45m2)

47.100€

Valencia, España

INFORMACIÓN:

REF: 0425167315

1

Dormitorios

1

Baños

45

Metros

2025

FABRICACIÓN

DESCRIPCIÓN:

Un espacio moderno y versátil diseñado para quienes buscan comodidad y funcionalidad en un entorno natural. Con amplios ventanales y un diseño acogedor, este modelo es perfecto para disfrutar de un hogar práctico y contemporáneo, adaptable a cualquier necesidad.

Características
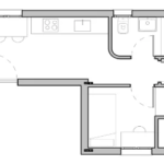
Compuesto por 2 contenedores de 12 metros y 6 metros respectivamente, ofrece 45 m² de espacio habitable. Este modelo incluye una habitación, un baño, un salón y una cocina abierta, maximizando la comodidad y el aprovechamiento del espacio con un diseño funcional y luminoso.

CARACTERÍSTICAS:

Baño Completo

Cocina Equipada

Luminoso

Suelo de vinilo

Techo a 2 Aguas

Ventanas doble Cristal

GALERÍA:

DIRECCIÓN:

Valencia, España

VÍDEO:

Anuncios similares

DOS DÍAS CONTAINER

Ver Perfil

¿Con qué nombre desas guardar esta búsqueda?

Encuentra tu casa:

Encuentra en tu ciudad

Habitaciones

Baños

Tipo de propiedad

Precio

Precio - slider
0 500.000

Superficie

Metros cuadrados - slider
0 300
Ver resultados

DOSDIAS

Inicia sesión en Fasthome

Regístrate en Fasthome

¿Aún no tienes una cuenta?Regístrate aquí.
¿Has olvidado tu contraseña?
¿Ya tienes una cuenta?Inicia sesión aquí.

¿Eres profesional del sector prefabricado?