
INFORMACIÓN:
REF:
DESCRIPCIÓN:
Un refugio compacto y versátil diseñado para quienes buscan simplicidad y funcionalidad. Ideal como espacio auxiliar, oficina o estudio, esta vivienda ofrece un diseño minimalista que se adapta perfectamente a cualquier entorno, brindando comodidad y estilo.
Características
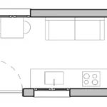
Compuesto por 1 contenedor de 6 metros, ofrece 15 m² de espacio. Perfecto para adaptarse a una cocina abierta, un baño y un dormitorio. Su diseño compacto y luminoso asegura un entorno práctico y acogedor, ideal para maximizar pequeños espacios con estilo.
CARACTERÍSTICAS:
Baño Completo
Cocina Equipada
Luminoso
Suelo de vinilo
Techo a 2 Aguas
Ventanas doble Cristal
GALERÍA:
UBICACIÓN:
Abrir en Google MapsDIRECCIÓN:
Valencia, España
VÍDEO:
Anuncios similares

DOS DÍAS CONTAINER







