
INFORMACIÓN:
REF: 0425168273
DESCRIPCIÓN:
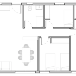
Un hogar espacioso y sofisticado que combina diseño moderno con funcionalidad. Con áreas amplias y bien definidas, este modelo es ideal para familias o quienes buscan un espacio cómodo y elegante que se adapte a diferentes estilos de vida.
Características
Compuesto por 3 contenedores de 12 metros cada uno, ofrece 90 m² distribuidos en 1 o 2 plantas. Este modelo incluye un salón, una cocina abierta y hasta 3 habitaciones y 2 baños, ofreciendo el equilibrio perfecto entre confort y diseño contemporáneo.
CARACTERÍSTICAS:
Baño Completo
Capacidad 6 Personas
Cocina Equipada
Luminoso
Suelo de vinilo
Techo a 2 Aguas
Ventanas doble Cristal
GALERÍA:
UBICACIÓN:
Abrir en Google MapsDIRECCIÓN:
Valencia, España
VÍDEO:
Anuncios similares

DOS DÍAS CONTAINER



