MENORCA (75m2)

69.700€

Valencia, España

INFORMACIÓN:

REF: 0425162516

2

Dormitorios

1

Baños

75

Metros

2025

FABRICACIÓN

DESCRIPCIÓN:

Un diseño innovador que ofrece comodidad y estilo en un espacio amplio y funcional. Ideal para familias o para quienes buscan un hogar versátil y moderno, este modelo combina áreas luminosas y un diseño que se adapta perfectamente a cualquier entorno.

Características
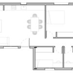
Compuesto por 3 contenedores de 12 metros y 6 metros, ofrece 75 m² de espacio distribuido en 1 o 2 plantas. Este modelo incluye un salón, una cocina abierta y hasta 3 habitaciones y 2 baños, proporcionando un equilibrio perfecto entre funcionalidad y confort.

CARACTERÍSTICAS:

Baño Completo

Capacidad 6 Personas

Luminoso

Suelo de vinilo

Techo a 2 Aguas

Ventanas doble Cristal

GALERÍA:

DIRECCIÓN:

Valencia, España

VÍDEO:

Anuncios similares

DOS DÍAS CONTAINER

Ver Perfil

¿Con qué nombre desas guardar esta búsqueda?

Encuentra tu casa:

Encuentra en tu ciudad

Habitaciones

Baños

Tipo de propiedad

Precio

Precio - slider
0 500.000

Superficie

Metros cuadrados - slider
0 300
Ver resultados

DOSDIAS

Inicia sesión en Fasthome

Regístrate en Fasthome

¿Aún no tienes una cuenta?Regístrate aquí.
¿Has olvidado tu contraseña?
¿Ya tienes una cuenta?Inicia sesión aquí.

¿Eres profesional del sector prefabricado?