
INFORMACIÓN:
REF: 0525053882
DESCRIPCIÓN:
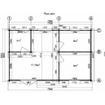
Si estás buscando una nueva vivienda de vacaciones para toda la familia, La Casa Daiva es la solución perfecta. Esta casa es de 40 m2 – 8×5 – 44 mm y tiene una distribución que permite tener múltiples estancias en las que es posible instalar tres habitaciones, sala de estar-cocina y baño. Por lo tanto, no necesitarás un gran terreno donde instalarla, pero dispondrás de una distribución inteligente que te permitirá tener un gran número de habitaciones para que cada uno de los integrantes de la familia tenga su propio espacio.
Esta casa no incluye: Cubierta para tejado, Soportes PVC, Techo Doble, Montaje del producto ni Tratamiento de madera. Si quiere estos complementos rellena nuestro formulario de contacto para que podamos contactar con usted y darle un presupuesto.
CARACTERÍSTICAS:
Capacidad 6 Personas
Envío a Domicilio
Luminoso
Material Madera
Portátil
Puertas Correderas
Sin Baño
Sin Cocina
Suelo de Madera
Techo a 2 Aguas
GALERÍA:
UBICACIÓN:
Abrir en Google MapsDIRECCIÓN:
Ctra. N-340, Km.1113, Ametlla de Mar, 43860
VÍDEO:
Anuncios similares
Nuevo
DESTACADA
Nuevo
Polígono Industrial Ali Gobeo C/ Vitoriabidea, 15 – 01010 Vitoria
3
1
70
Nuevo
Polígono Industrial Ali Gobeo C/ Vitoriabidea, 15 – 01010 Vitoria
1
0
22
Nuevo

EUROCASETAS





