
INFORMACIÓN:
REF: 0525056500
DESCRIPCIÓN:
La Casa Duna es una casa estudio .
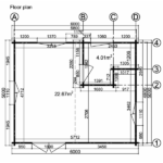
Esta casa es de 30 m2 – 6×5 – 44 mm y tiene una distribución que permite tener una amplia estancia en la que es posible instalar sala de estar-cocina y baño.
Esta casa no incluye: Cubierta para tejado, Soportes PVC, Techo Doble, Montaje del producto ni Tratamiento de madera. Si quiere estos complementos rellena nuestro formulario de contacto para que podamos contactar con usted y darle un presupuesto.
CARACTERÍSTICAS:
Envío a Domicilio
Luminoso
Material Madera
Portátil
Sin Baño
Sin Cocina
Suelo de Madera
Techo a 2 Aguas
Ventanas Simples
GALERÍA:
UBICACIÓN:
Abrir en Google MapsDIRECCIÓN:
Ctra. N-340, Km.1113, Ametlla de Mar, 43860
VÍDEO:
Anuncios similares
Nuevo
DESTACADA
Nuevo
Polígono Industrial Ali Gobeo C/ Vitoriabidea, 15 – 01010 Vitoria
3
1
70
Nuevo
Polígono Industrial Ali Gobeo C/ Vitoriabidea, 15 – 01010 Vitoria
1
0
22
Nuevo

EUROCASETAS











