
INFORMACIÓN:
REF: 0525057618
DESCRIPCIÓN:
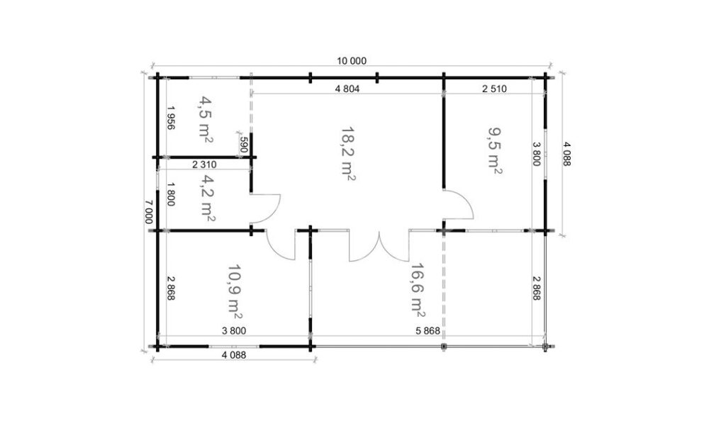
Esta villa de verano de estilo moderno cuenta con ventanas altas y una puerta completamente acristalada, creando un ambiente luminoso y aireado. Los dos dormitorios y la terraza de 17m frente a las ventanas altas proporcionan un espacio de vida amplio y cómodo.
CARACTERÍSTICAS:
Envío a Domicilio
Luminoso
Material Madera
Porche
Portátil
Puertas Abatibles
Techo Plano
Ventanas doble Cristal
GALERÍA:
UBICACIÓN:
Abrir en Google MapsDIRECCIÓN:
Sevilla
VÍDEO:
Anuncios similares
Nuevo
DESTACADA
Nuevo
Polígono Industrial Ali Gobeo C/ Vitoriabidea, 15 – 01010 Vitoria
3
1
70
Nuevo
Polígono Industrial Ali Gobeo C/ Vitoriabidea, 15 – 01010 Vitoria
1
0
22
Nuevo

SODOCASA




















