
INFORMACIÓN:
REF: 0525057704
DESCRIPCIÓN:
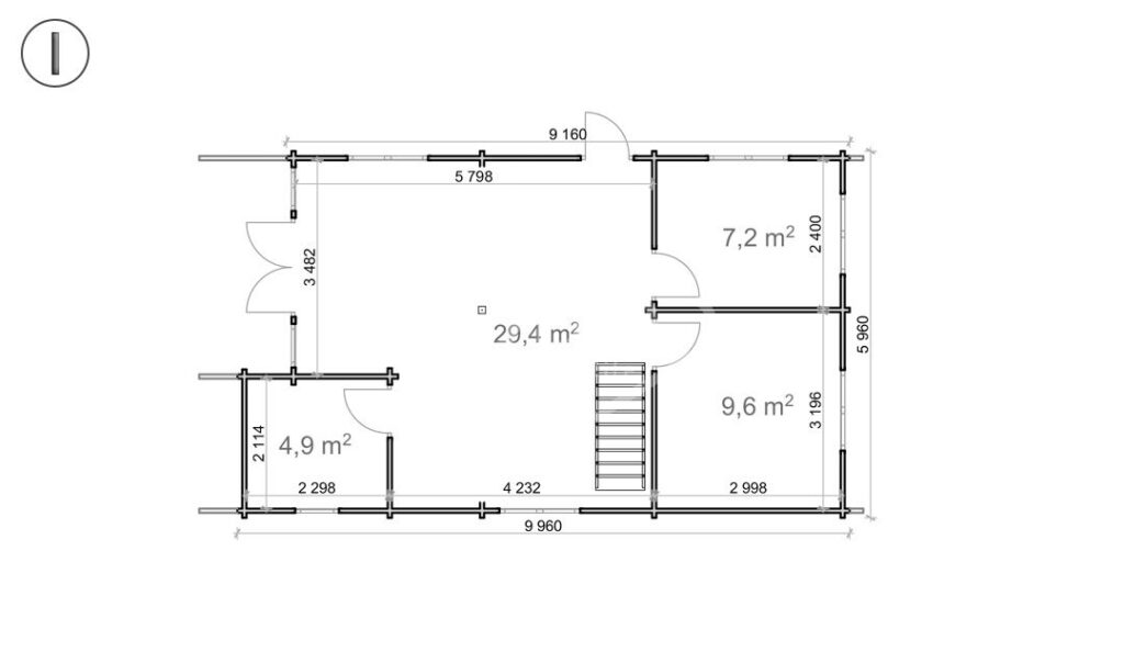
Esta casa de campo de 2 pisos de estilo atemporal ofrece 100m2 de espacio habitable con 4 dormitorios y 2 baños. Es la combinación perfecta de encanto clásico y comodidad moderna.
CARACTERÍSTICAS:
2 Plantas
Envío a Domicilio
Luminoso
Portátil
Puertas Abatibles
Techo a 2 Aguas
Ventanas doble Cristal
GALERÍA:
UBICACIÓN:
Abrir en Google MapsDIRECCIÓN:
Sevilla
VÍDEO:
Anuncios similares
Nuevo
Polígono Industrial Ali Gobeo C/ Vitoriabidea, 15 – 01010 Vitoria
1
0
17
Nuevo
Nuevo
Polígono Industrial Ali Gobeo C/ Vitoriabidea, 15 – 01010 Vitoria
1
0
11

SODOCASA































