
INFORMACIÓN:
REF: 0525058735
DESCRIPCIÓN:
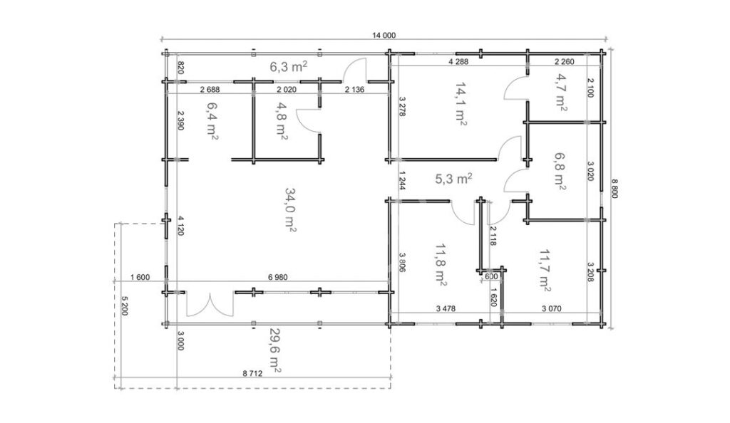
Esta casa de madera modernista de 100 m2 cuenta con 3 dormitorios, un vestidor, baño y trastero, lo que la convierte en una opción óptima para una familia numerosa. Con muchas ventanas grandes, la casa está inundada de luz natural, creando un espacio de vida luminoso y acogedor.
CARACTERÍSTICAS:
Capacidad 6 Personas
Envío a Domicilio
Luminoso
Material Madera
Portátil
Techo Plano
Ventanas doble Cristal
Vestidor
GALERÍA:
UBICACIÓN:
Abrir en Google MapsDIRECCIÓN:
Sevilla
VÍDEO:
Anuncios similares
Nuevo
DESTACADA
Nuevo
Polígono Industrial Ali Gobeo C/ Vitoriabidea, 15 – 01010 Vitoria
3
1
70
Nuevo
Polígono Industrial Ali Gobeo C/ Vitoriabidea, 15 – 01010 Vitoria
1
0
22
Nuevo

SODOCASA









































