
INFORMACIÓN:
REF: 0425203640
DESCRIPCIÓN:
Miranda
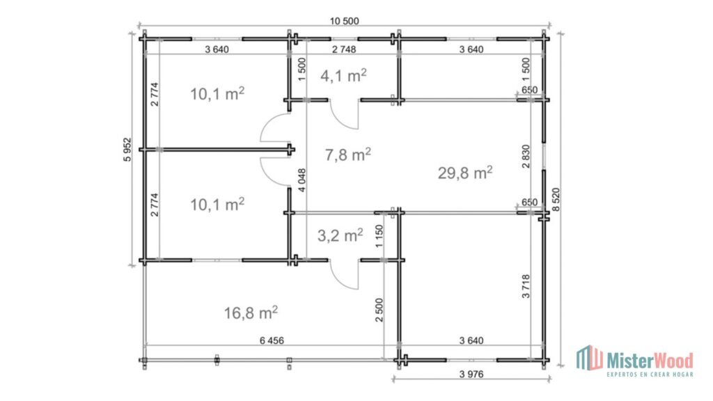
Nuestro modelo Miranda con una superficie de 87m², su interior cuenta con una distribución de 2 habitaciones, 1 baño, cocina, salón comedor y terraza techada.
¿QUIERES SABER TODO LO QUE INCLUYE EL PRECIO?
Rellena el formulario de contacto con tus datos, envíalo, recibirás un PDF con tu información.
CARACTERÍSTICAS:
Baño Completo
Capacidad 10 Personas
Cocina Amueblada
Cocina Equipada
Desmontable
Envío a Domicilio
Instalación de Agua
Instalación Desagües
Instalación Eléctrica
Luminoso
GALERÍA:
UBICACIÓN:
Abrir en Google MapsDIRECCIÓN:
Exposición: Calle Verdolaga, 2 29631 Benalmádena, (Málaga)
VÍDEO:
Anuncios similares
Nuevo
Polígono Industrial Ali Gobeo C/ Vitoriabidea, 15 – 01010 Vitoria
1
0
22
Nuevo
Nuevo
Hijuela del Tio Gilito, 11500 El Puerto de Sta María, Cádiz
4
2
97
MISTERWOOD
































