
INFORMACIÓN:
REF: 0425204467
DESCRIPCIÓN:
Olivia
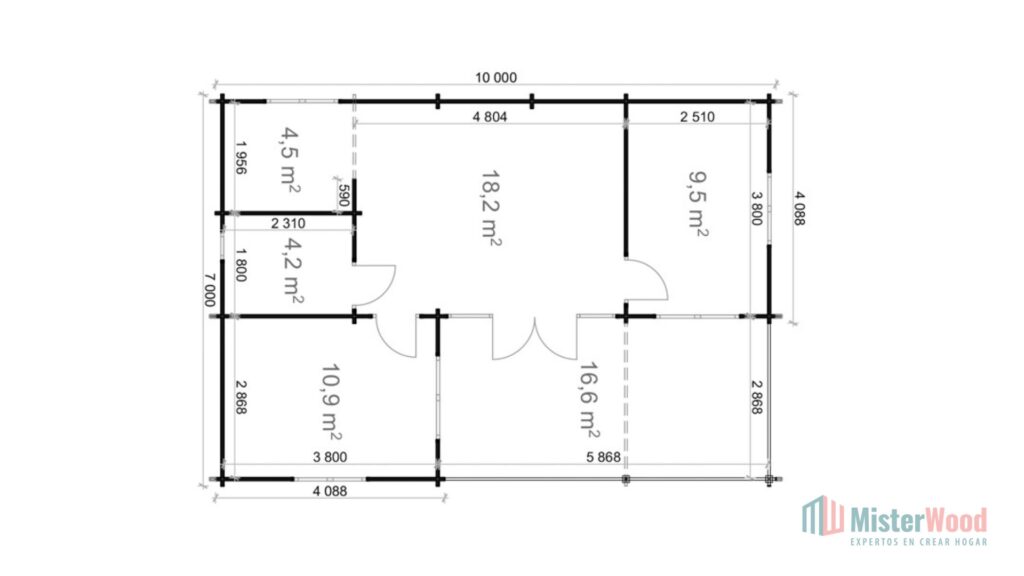
El modelo Olivia con una superficie de 70m², en su interior encontramos 2 habitaciones, 1 baño, cocina, salón comedor y terraza techada.
¿QUIERES SABER TODO LO QUE INCLUYE EL PRECIO?
Rellena el formulario de contacto con tus datos, envíalo, recibirás un PDF con tu información.
CARACTERÍSTICAS:
Baño Completo
Capacidad 8 Personas
Cocina Amueblada
Cocina Equipada
Desmontable
Envío a Domicilio
Luminoso
Material Madera
Porche
Portátil
GALERÍA:
UBICACIÓN:
Abrir en Google MapsDIRECCIÓN:
Exposición: Calle Verdolaga, 2 29631 Benalmádena, (Málaga)
VÍDEO:
Anuncios similares
Nuevo
Nuevo
Nuevo
DESTACADA
Polígono Industrial Ali Gobeo C/ Vitoriabidea, 15 – 01010 Vitoria
1
0
11
MISTERWOOD























