
INFORMACIÓN:
REF: 0525054646
DESCRIPCIÓN:
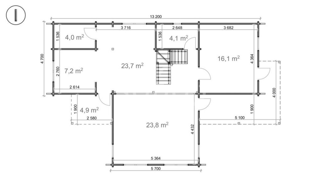
Esta casa de madera de 132 m2 y 2 pisos cuenta con 3 dormitorios, un vestidor, 2 baños, un área de cocina y un trastero. Ofrece un amplio espacio y una sensación acogedora y rústica.
CARACTERÍSTICAS:
2 Plantas
Capacidad 6 Personas
Envío a Domicilio
Luminoso
Material Madera
Portátil
Puertas Abatibles
Techo a 2 Aguas
Ventanas doble Cristal
GALERÍA:
UBICACIÓN:
Abrir en Google MapsDIRECCIÓN:
Sevilla
VÍDEO:
Anuncios similares
Nuevo
Nuevo
DESTACADA
Polígono Industrial Ali Gobeo C/ Vitoriabidea, 15 – 01010 Vitoria
3
1
70
Nuevo
DESTACADA
Nuevo

SODOCASA






































