
INFORMACIÓN:
REF: 0525051767
DESCRIPCIÓN:
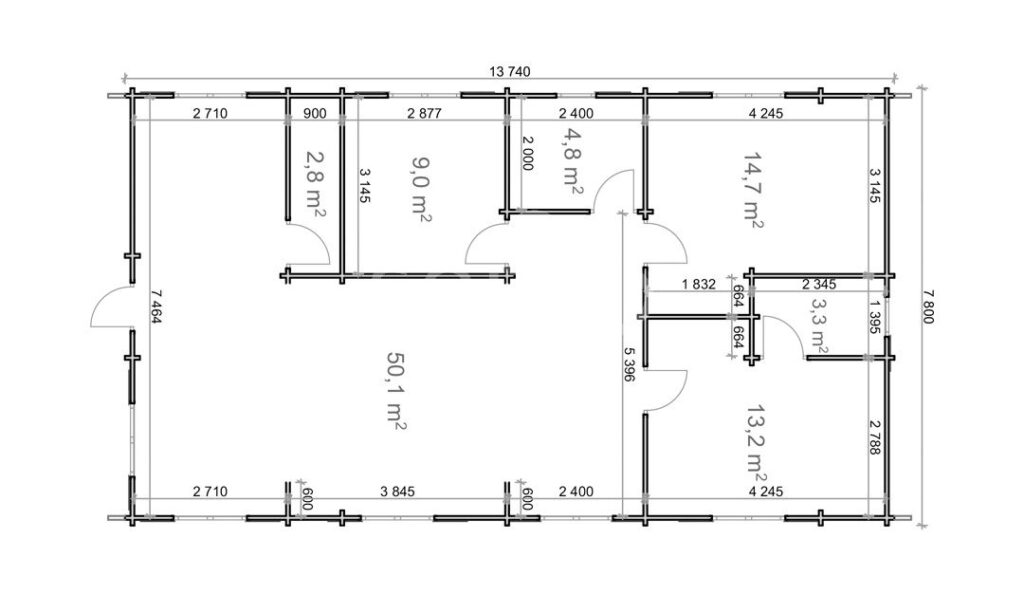
Esta casa de madera de 98 m2 cuenta con 3 dormitorios, una sala de estar, un área de cocina con un trastero y un armario al lado de uno de los dormitorios. La casa tiene una alineación bien pensada, lo que la convierte en un espacio habitable práctico y funcional.
CARACTERÍSTICAS:
Capacidad 6 Personas
Envío a Domicilio
Luminoso
Material Madera
Portátil
Puertas Abatibles
Suelo de Madera
Techo a 2 Aguas
Ventanas doble Cristal
GALERÍA:
UBICACIÓN:
Abrir en Google MapsDIRECCIÓN:
Sevilla
VÍDEO:
Anuncios similares
Nuevo
Polígono Industrial Ali Gobeo C/ Vitoriabidea, 15 – 01010 Vitoria
1
0
17
Nuevo
Nuevo
Polígono Industrial Ali Gobeo C/ Vitoriabidea, 15 – 01010 Vitoria
1
0
11

SODOCASA























